Residencial
Institucional
Nosotros
Contacto
Creadora de Arquitectura
Residencial
Institucional
Nosotros
Contacto

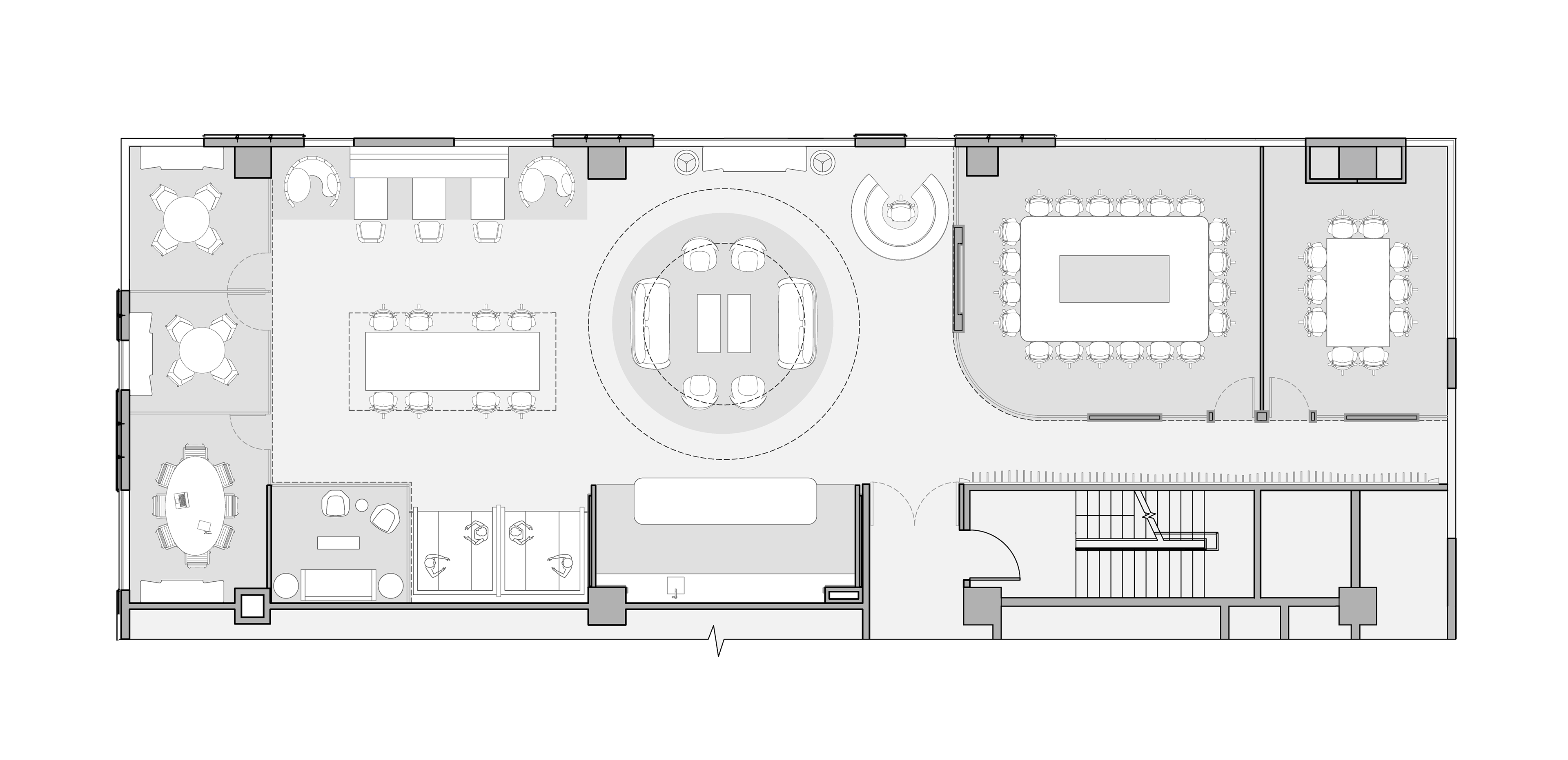
Business Center Edificio Vía

All works © Creadora de Arquitectura 2025. Please do not reproduce without the expressed written consent of Creadora de Arquitectura. Designed by Creadora de Arquitectura.