Residencial
Institucional
Nosotros
Contacto
Creadora de Arquitectura
Residencial
Institucional
Nosotros
Contacto

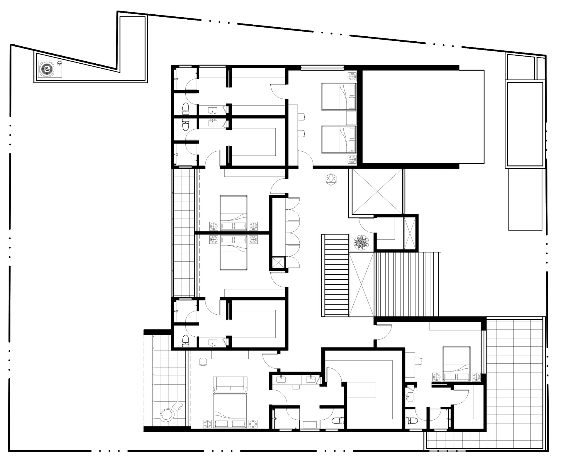
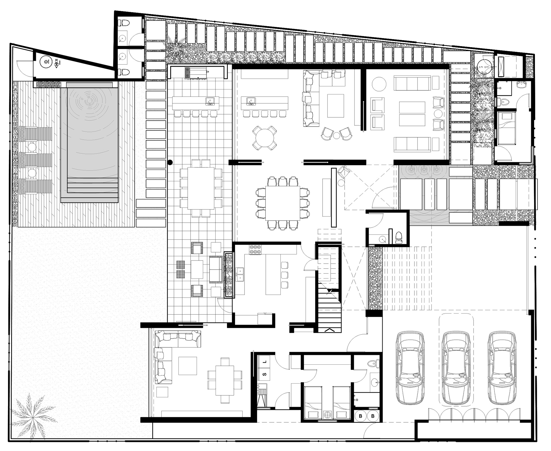
Casa Missouri

Casa habitación de 800 m2 de construcción, ubicada en un terreno de 788 m2, en el municipio de San Pedro Garza García, N. L., México 2014

All works © Creadora de Arquitectura 2025. Please do not reproduce without the expressed written consent of Creadora de Arquitectura. Designed by Creadora de Arquitectura.