Residencial
Institucional
Nosotros
Contacto
Creadora de Arquitectura
Residencial
Institucional
Nosotros
Contacto

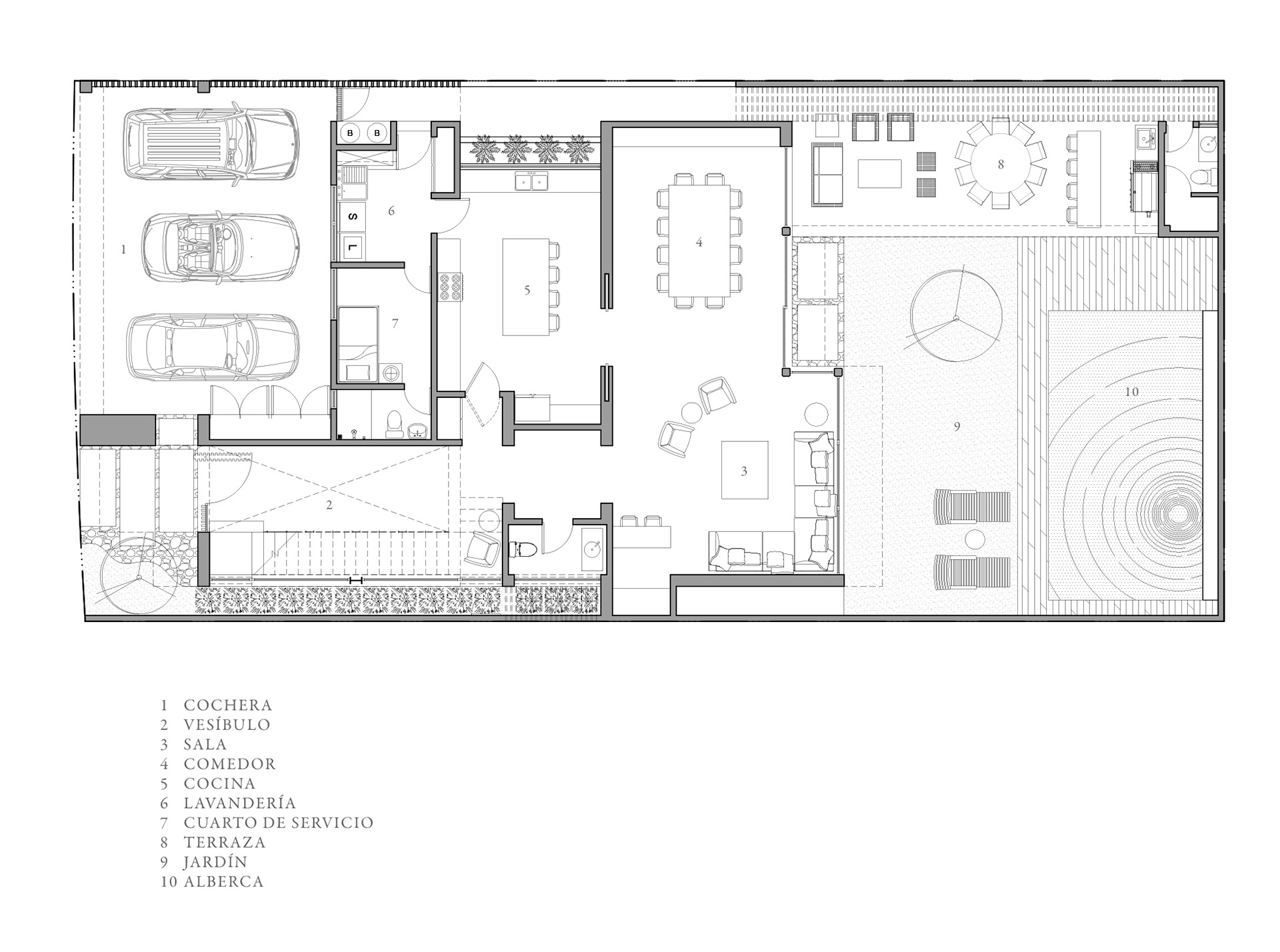
Casa Portal de Valle Alto 1

Casa Habitación de 500m cuadrados aprox. ubicada en Monterrey, N. L. 2015

All works © Creadora de Arquitectura 2025. Please do not reproduce without the expressed written consent of Creadora de Arquitectura. Designed by Creadora de Arquitectura.