Residencial
Institucional
Nosotros
Contacto
Creadora de Arquitectura
Residencial
Institucional
Nosotros
Contacto

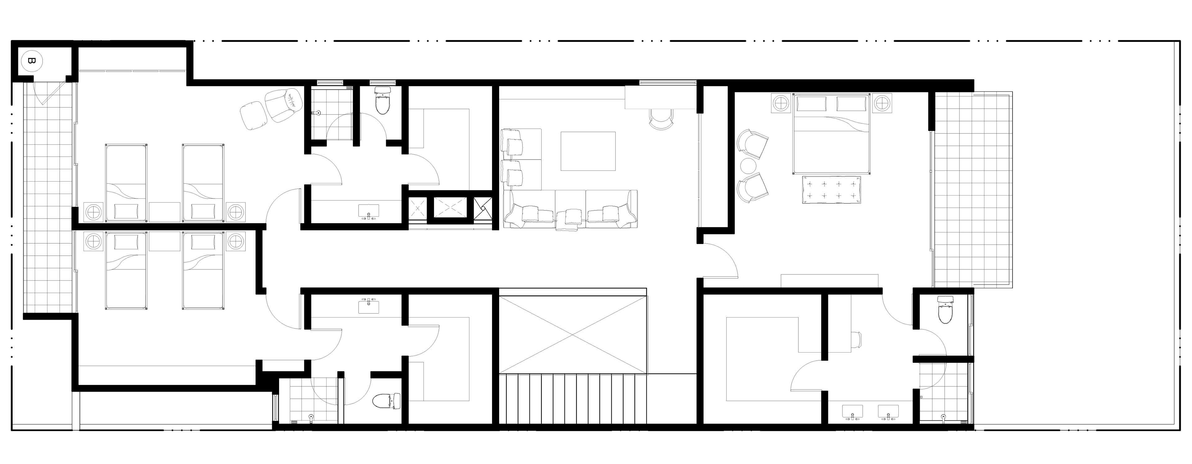
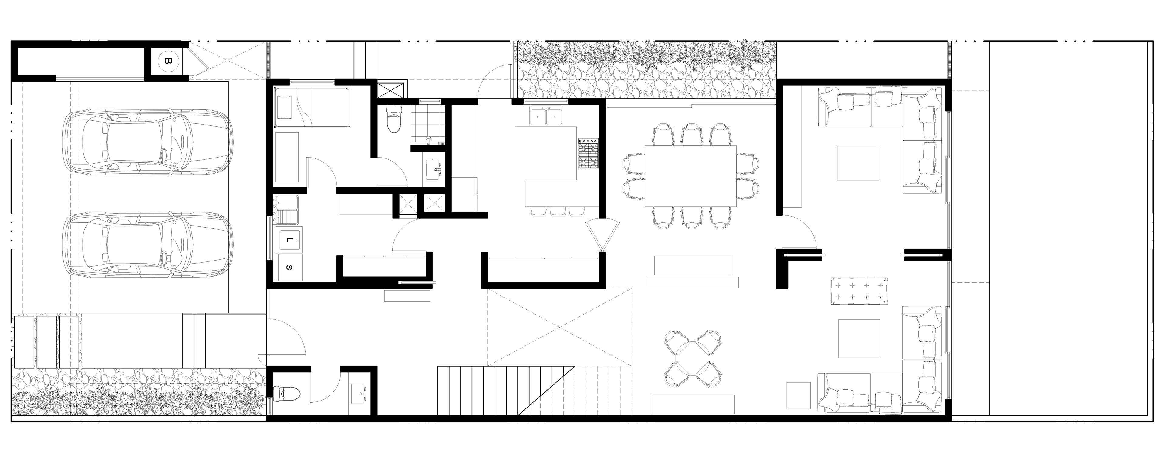
Casas Moralillo

Desarrollo de casas habitación de 430 metros cuadrados aprox. ubicadas en San Pedro Garza García, N. L. 2013

All works © Creadora de Arquitectura 2025. Please do not reproduce without the expressed written consent of Creadora de Arquitectura. Designed by Creadora de Arquitectura.