Proyecto en colaboración con Grupo JCV
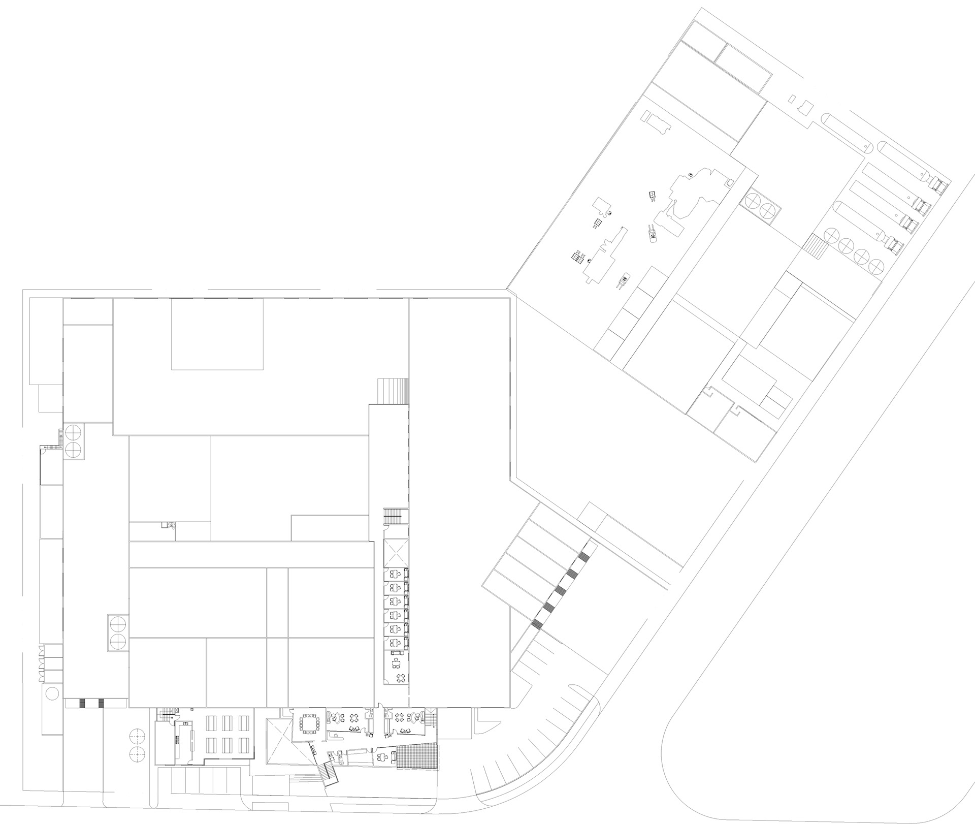
Planta industrial Gonac
Planta industrial y oficinas corporativas Gonac. Nave de 8,000 metros cuadrados de construcción Terreno de 15,900 m2 ubicado en el Parque Industrial Martel. Santa Catarina, N.L., Mx 2007 Colaboración Grupo JCV